EXCLUSIVITE " LE MAYER " - Vente Appartement tours : 76.55 m2

Réf: TRSV5841
Vente
Appartement
Tours
4 pièce(s)
76.55m²
3 chb.
1 sdb.
Electrique
237 500 €

Description

Pour ne pas dire le Meilleur ! Découvrez en EXCLUSIVITE, ce Spacieux T4 de 77 m2, situé au 3ème étage avec ascenseur d'une copropriété récente avec des prestations complètes. Tout y est ... Grande entrée avec placard desservant, le Séjour et sa Cuisine équipée-aménagée donnant sur une terrasse de 12 m2. Un WC séparé, une Grande salle de bains avec double vaque, 2 grandes chambres et un bureau. Ce bien est idéalement conçu pour votre famille car, au delà de ses volumes confortables et ses performances énergétiques très économe ( DPE : C ), vous bénéficierez de 2 places de stationnements ( en sous-sol et extérieur ) . Plutôt rare dans le coin ! Situé dans un quartier dynamique de TOURS NORD, entre 2 arrêts de TRAM ( Ligne A ) et à proximité des commerces, vos enfants pourront aller se dégourdir les jambes dans le parc au pied de l'immeuble. Vous l'avez trouvé, votre pépite, alors ne tardez plus, contactez nous pour visiter car des produits comme cela ne restent pas longtemps sur le marché ! (5.56 % honoraires TTC à la charge de l'acquéreur.) Copropriété de 60 lots - dont 30 lots habitation. (). Charges annuelles : 1215 euros. Sébastien Descharles (EI) Agent Commercial - Numéro RSAC : 2024AC00092 - TOURS.

Bilan energétique

consommation
161
kWh/m2/an
émissions
5
kg CO₂/m²/an
logement extrêmement performant
A
B
C
D
E
F
G
logement extrêmement peu performant
émissions
5
kg CO₂/m²/an
peu d’émissions de CO₂
A
B
C
D
E
F
G
émissions de CO₂ très importantes

Estimation du coût annuel des énergies pour un usage standard entre 780€ et 1100€ au 01-01-2021 (abonnement compris).

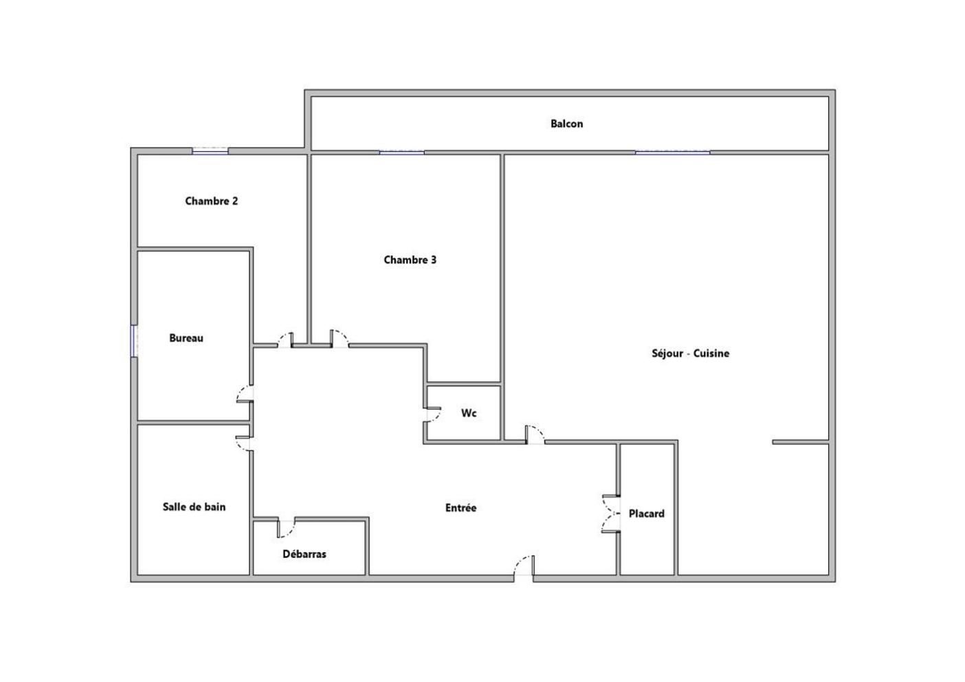
Détail du bien

Surface au sol 76,55 m²
Surface carrez 76,55 m²
Etat des Risques et Pollutions (ERP) Les informations sur les risques auxquels ce bien est exposé sont disponibles sur le site Géorisques
Prix (honoraires inclus) 237 500 €
Prix (hors honoraires) 225 000 €
Honoraires à charge acquéreur 12 500 €
Honoraires à charge acquéreur (%) 5.56%
Charges annuelles 1 215,00 €
Nombre de lots dans la copropriété 60
Procédure(s) en cours Aucune

L'avis de votre conseiller

Sébastien DESCHARLES, Agent commercial

Beau produit récentIdéal Famille

Contactez moi

06 19 12 75 56
sebastien.tours@bedandschool.com

Localisation

L'école, la salle de sport ou les principaux bars & restaus de votre ville se trouvent à 👇

Vous n'avez pas trouvé ce qui correspond à votre recherche ?

Si vous n'avez pas trouvé votre bonheur ici, nous l'avons peut-être en cours d'enregistrement chez nous. Alors si vous voulez être les premiers informés, contactez-nous !